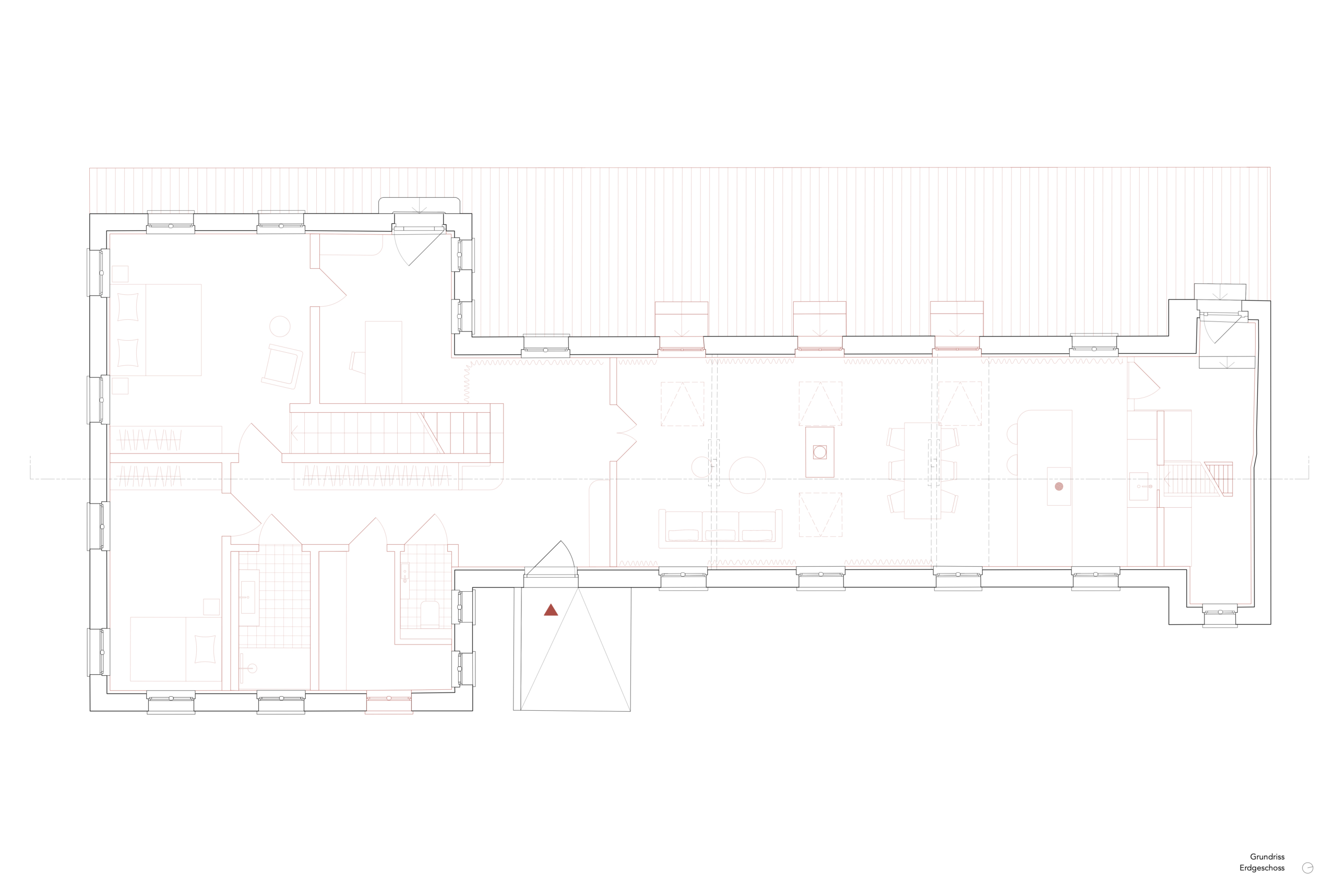
Projektdetails
Der historische Baukörper aus dem frühen 20.Jahrhundert, eingebettet in eine gewachsene Grünanlage, wurde durch eine sensible Sanierung und Umnutzung zu neuem Leben erweckt. Im Innenraum entstand eine neue Raumaufteilung, die gemeinschaftliche und private Bereiche klar zoniert und durch gezielte Blickbezüge sowie eine präzise Lichtführung unterstützt wird. Der bisher ungenutzte Dachstuhl wurde zu einer zweiten Ebene ausgebaut wodurch zusätzlicher, familiengerechter Wohnraum im urbanen Umfeld entsteht. Neue Dachöffnungen bringen zusätzliches Tageslicht in die neuen Räume. Maßgefertigte Einbauten optimieren die Nutzung der Fläche und bieten aufgrund des fehlenden Kellers großzügige, clevere Stauraumlösungen.
Aufgabengebiete
Aufgrund des Einzeldenkmal-Status erfolgten Planung inkl. Antrag auf denkmalschutzrechliche Erlaubnis und Umsetzung des Umbaus in enger Abstimmung mit dem Landesamt für Denkmalpflege und der Unteren Denkmalschutzbehörde. Ein detailliertes Konzept verband die denkmalpflegerischen Vorgaben mit den Anforderungen einer zeitgemäßen Wohnnutzung. Das Projekt zeigt, wie historische Substanz geschützt, die baukulturelle Identität bewahrt und gleichzeitig Raum für Neues geschaffen werden kann.
Highlights
Zentrum des Grundrisskonzepts ist der Wohn- und Esszimmer. Die teilweise Rückbau der Bestandsbalkendecke schafft einen zweigeschossigen Raum, der dem Haus seine neue räumliche Mitte verleiht. Hochwertige Materialien und ein sorgfältig entwickeltes Innenraumkonzept verleihen dem Bestand eine klare, zeitlose Wohnqualität. Durch den Erhalt und die Weiterentwicklung der bestehenden Struktur wird zudem ein wesentlicher Beitrag zu einer nachhaltigen Ressourcennutzung geleistet.
energetische Sanierung eines Denkmals
Für die energetische Sanierung kamen ausschließlich denkmalverträgliche Maßnahmen zum Einsatz.
Statt einer Außendämmung wurden Kalziumsilikatplatten raumseitig auf die Außenwände gesetzt, um die historische Fassade zu erhalten. Eine nachträgliche Einblasdämmung aus Holzweichfaser verbessert die Energieeffizienz des historischen Dachstuhls. Ergänzt wird das nachhaltige Energiekonzept durch den Anschluss an ein Fernwärmenetz. Der Energiestandard KfW‑Denkmal wurde erreicht.
Entdecken Sie unsere Leidenschaft für das Denkmal
Werfen Sie einen Blick auf unsere weiteren Denkmal-Projekte.













