Projektdetails
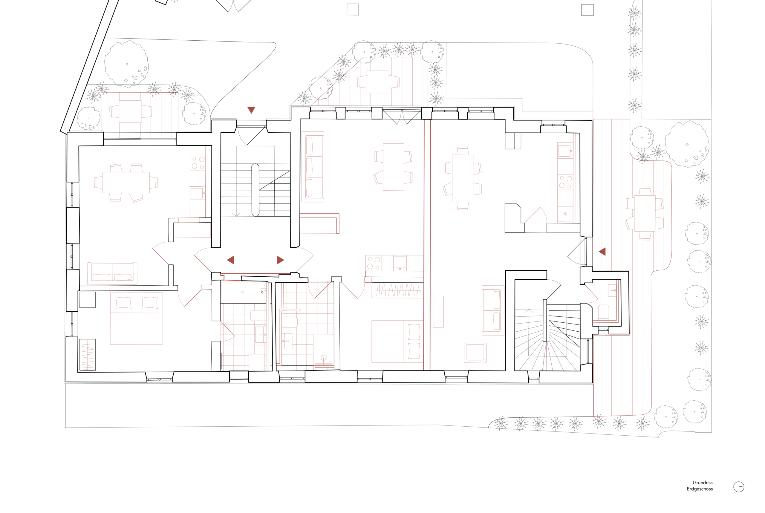
Versteckt in einem Hinterhof im Dreimühlenviertel befindet sich ein ehemaliger Pferdestall. Insbesondere die Fassade, eine zweifarbige Ziegelbauweise mit Holzfachwerk ist in München einmalig. Im Zuge der Kernsanierung wurde der denkmalgeschützte Dachstuhl ausgebaut, ein Townhouse mit Garten konzipiert und der Innenhof entsiegelt und begrünt. So findet eine durchmischte Bewohnerschaft ihr Zuhause in den unterschiedlichen Wohnungsgrößen von der 2- Zimmer Wohnung bis zum Townhouse. Zwei neue Terrassen gehen ebenerdig in den Innenhof und bieten somit auch kleineren Wohnungen einen privaten Außenraum im Einzeldenkmal.
Aufgabengebiete
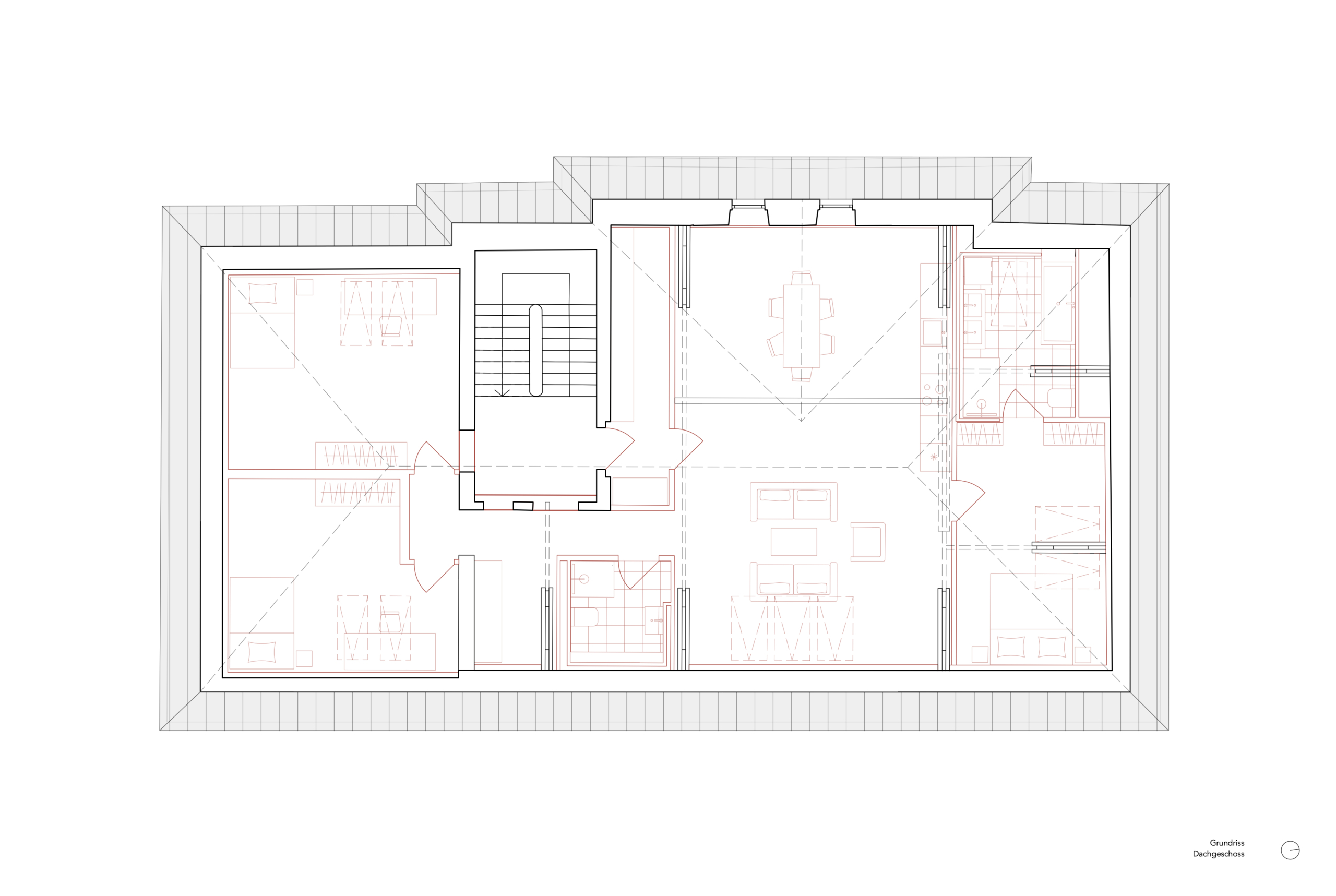
Neben einer für Altbauten üblichen, detaillierten Grundlagenermittlung galt es bei diesem Einzeldenkmal die Untere Denkmalschutzbehörde sowie das Landesamt für Denkmal frühzeitig in die Planung mit einzubeziehen. In regem Austausch wurden hier alle Sanierungsschritte geplant, detailliert und abgestimmt. Sechs historische Fenster halfen z.B. als Vorbild für alle neuen Fenster, in Sprossenmaß, Form und Farbe. Das Freilegen des ursprünglichen Fugenmörtels brachte Licht ins Dunkel zum Umgang mit der historischen, stark in die Jahre gekommenen Fassade. Das Ergebnis dieser Bemühungen wurde 2021 durch den Fassadenpreis der Landeshauptstadt München ausgezeichnet. Besonders hervorgehoben wurden dabei „sowohl die handwerklichen Leistungen als auch die behutsame Herangehensweise der Planung“.
Highlights
Die Fassade erstrahlt in neuem Glanz: mit einem Partikelstrahlverfahren wurde die Ziegelfassade gereinigt, mit rotem Mörtel wurden die offenen Fugen ergänzt, die Fenster wurden ausgetauscht und gestalterisch in den ursprünglichen Stand zurückversetzt. Der stark begrünte Innenhof zusammen mit den heterogenen Granitsteinen betten das Einzeldenkmal in eine würdige Umgebung, kein Vergleich zum vorherigen Asphaltteppich.
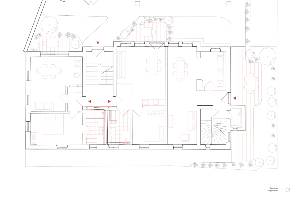
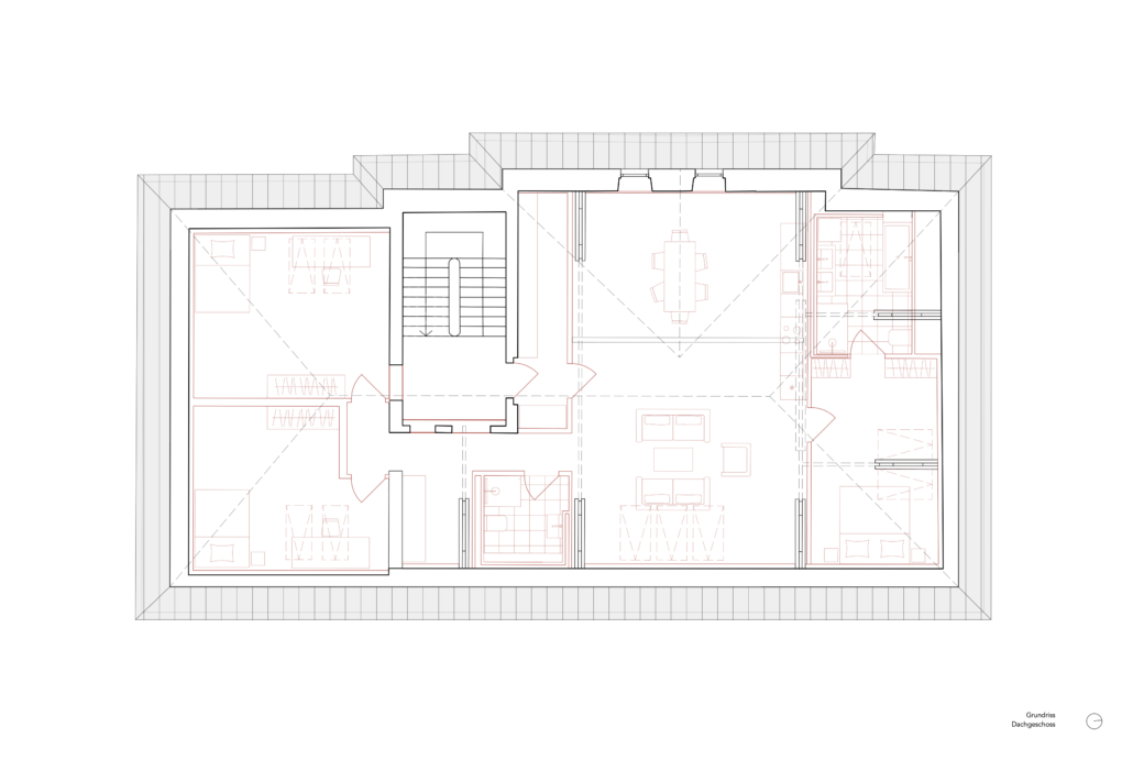
Townhouse
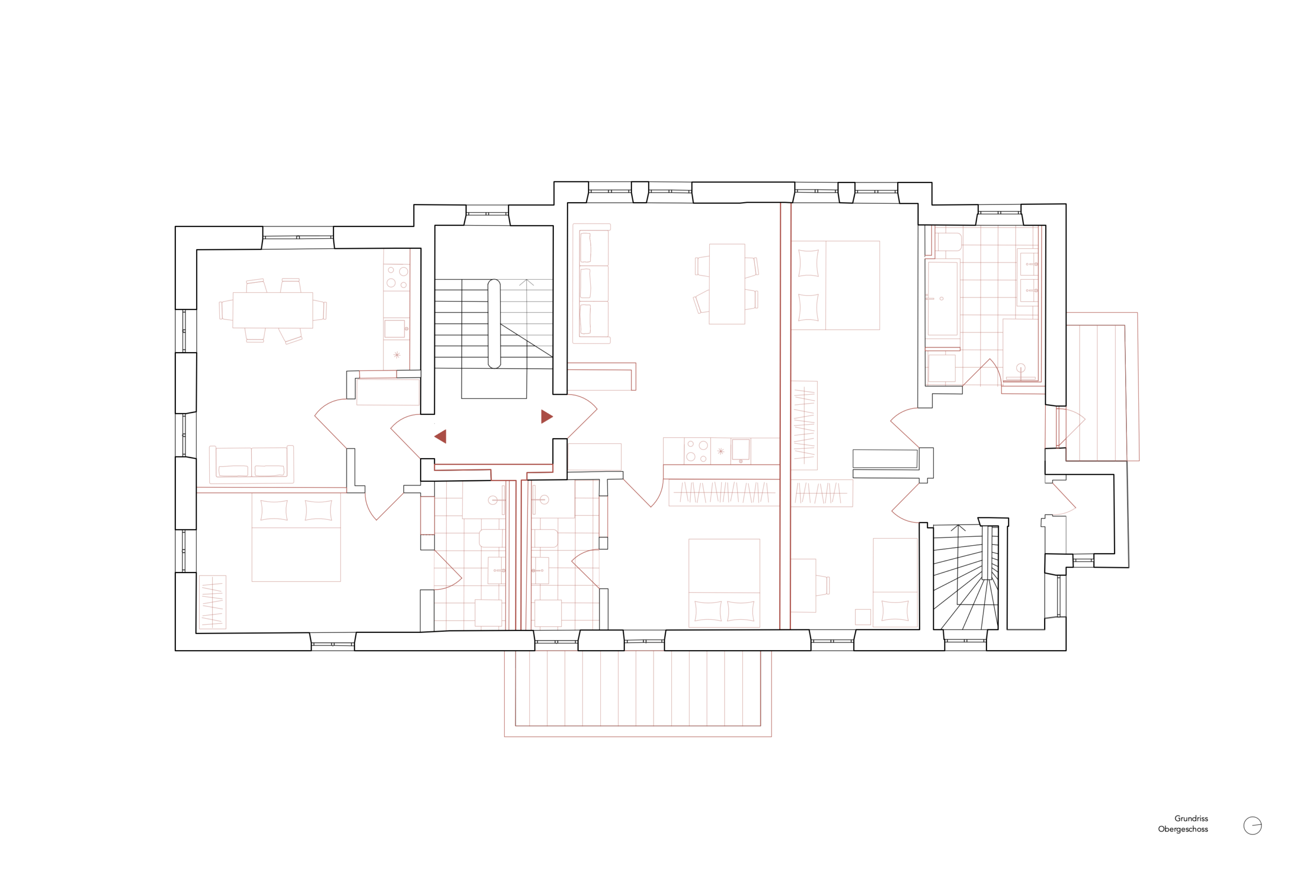
Mit dem Townhouse erreichen wir eine starke Aus- und Erweiterung des Wohnraums. Auf 100 qm und zwei Stockwerken kann hier zukünftig gekocht, gewohnt, gelebt und geliebt werden.
Besondere Herausforderung: Das Schaffen einer Verbindung von modernem Townhouse und denkmalgeschütztem Treppenhaus
Projektimpressionen
Die folgenden Aufnahmen zeigen das Projekt in seiner räumlichen und materiellen Umsetzung.
Entdecken Sie unsere Leidenschaft für das Denkmal
Werfen Sie einen Blick auf unsere weiteren Denkmal-Projekte.















