Projektdetails
Der Erhalt des denkmalgeschützten Dachstuhls mitsamt Gebälk und Zwerchgiebelgaube prägt die Altbauatmosphäre der geplanten Wohnungen. Notwendige statische Ertüchtigungen der obersten Geschossdecke und des Dachstuhls sind in die Bausubstanz integriert.
Durch den Einbau von Dachflächenfenstern und Gauben werden die großzügigen Räume im Mansardwalmdach wieder erlebbar und zusätzlich belichtet.
Aufgabengebiete
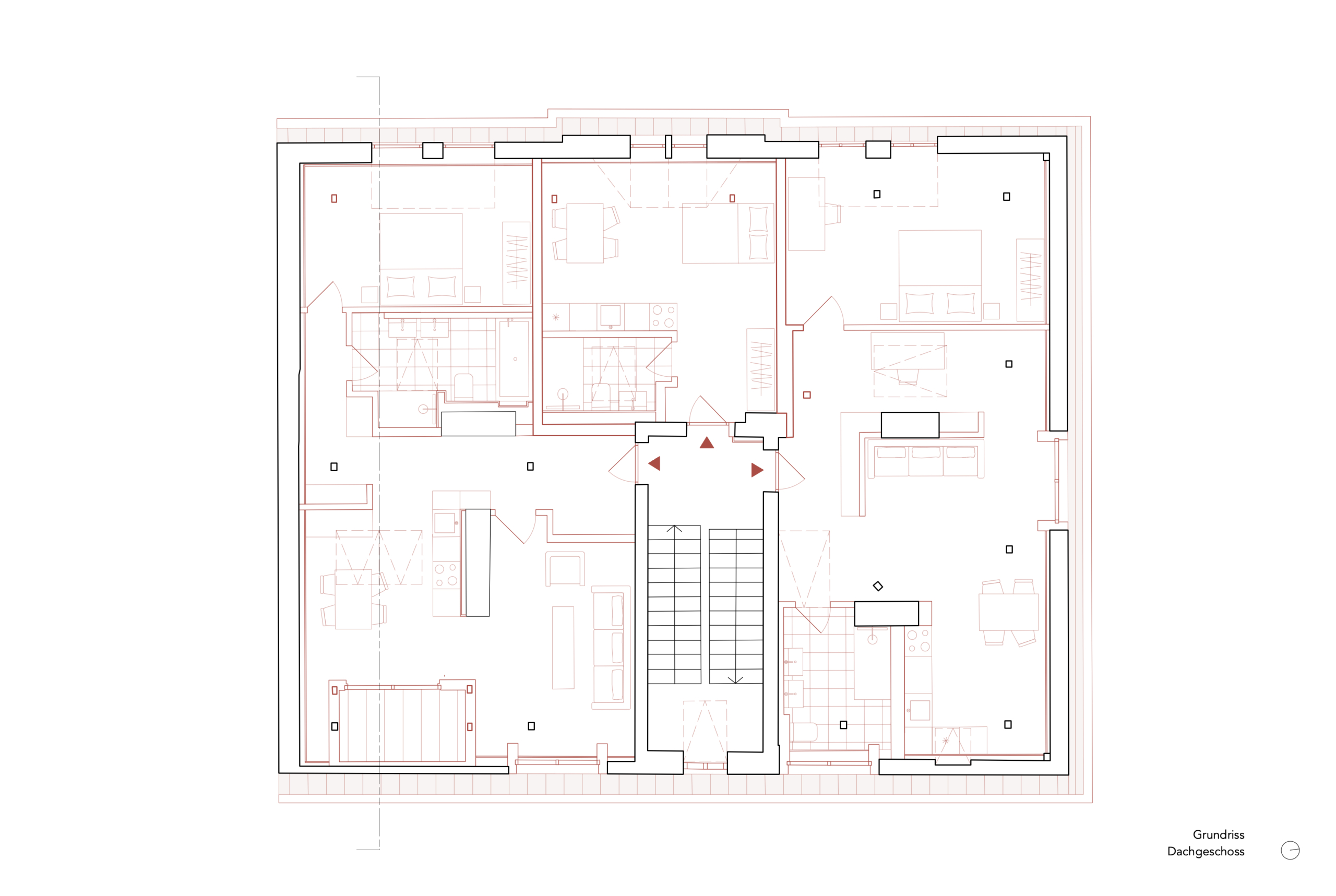
Neben der Denkmaleigenschaft bestimmen die Anforderungen der energetischen Sanierung sowie die Vorschriften der Erhaltungssatzung den Entwurf. Der Ausbau ermöglicht drei Wohneinheiten in unterschiedlichen Größen – vom Studio mit knapp 25 m² bis zur Familien- oder Paarwohnung mit jeweils rund 70 m².
Das Bauvorhaben wird vom ersten Entwurf bis zur Umsetzung von FV2 Architektur entwickelt und begleitet.
Für alle drei Wohnungen werden individuelle Küchen geplant, die auf die besondere Geometrie des Bestands reagieren.
Highlights
Durch neue Dachöffnungen entsteht erstmals der Blick in den idyllischen Hinterhof und auf den historischen Pferdestall.
Als Teil der Familienwohnung bietet die rund 4 m² große Dachloggia einen privaten Außenbereich über den Dächern der Stadt.
Neben der Aufwertung des Daches wird auch die Putzfassade des Hauses instand gesetzt und erhält einen neuen, farblich auf den bauzeitlichen Zustand abgestimmten Anstrich. Im Innenhof werden die Balkone der unteren Mieteinheiten durch eine zeitgemäße Stahlkonstruktion erneuert.
Innerstädtische Nachverdichtung
Die Baumaßnahme schafft neuen Wohnraum auf bislang ungenutzter Fläche. Der reale Wohnraummangel und die begrenzte Ressource Boden erfordern eine intensivere Nutzung bestehender Strukturen.
Durch den Ausbau von Dachgeschossen oder durch Aufstockungen können zusätzliche Wohnungen im dicht bebauten Stadtzentrum realisiert werden.
Projektimpressionen
Die folgenden Aufnahmen zeigen das Projekt in seiner räumlichen und materiellen Umsetzung.
Entdecken Sie unsere Leidenschaft für das Denkmal
Werfen Sie einen Blick auf unsere weiteren Denkmal-Projekte.













