Projektdetails
In Hallbergmoos, in unmittelbarer Nähe zum Flughafen, entsteht ein zukunftsorientiertes Wohnkonzept, das Familien attraktives Wohnen im Grünen ermöglicht. Der über die Jahre gewachsene Hof wird für kommende Generationen neu strukturiert, wobei der respektvolle Umgang mit dem bestehenden Elternhaus im Mittelpunkt steht. Durch die Umgestaltung der Bestandsbauten entsteht Wohnfläche für unterschiedliche Lebensformen – vom klassischen Familienwohnen mit eigener Gartenzone bis hin zu Maisonettewohnungen, die flexibel erweiterbar sind und sich zum Hof hin orientieren. So entsteht ein harmonisches Zusammenspiel aus Tradition und Moderne, das den Hof zu einem lebenswerten Ort für die Zukunft macht.
Aufgabengebiete
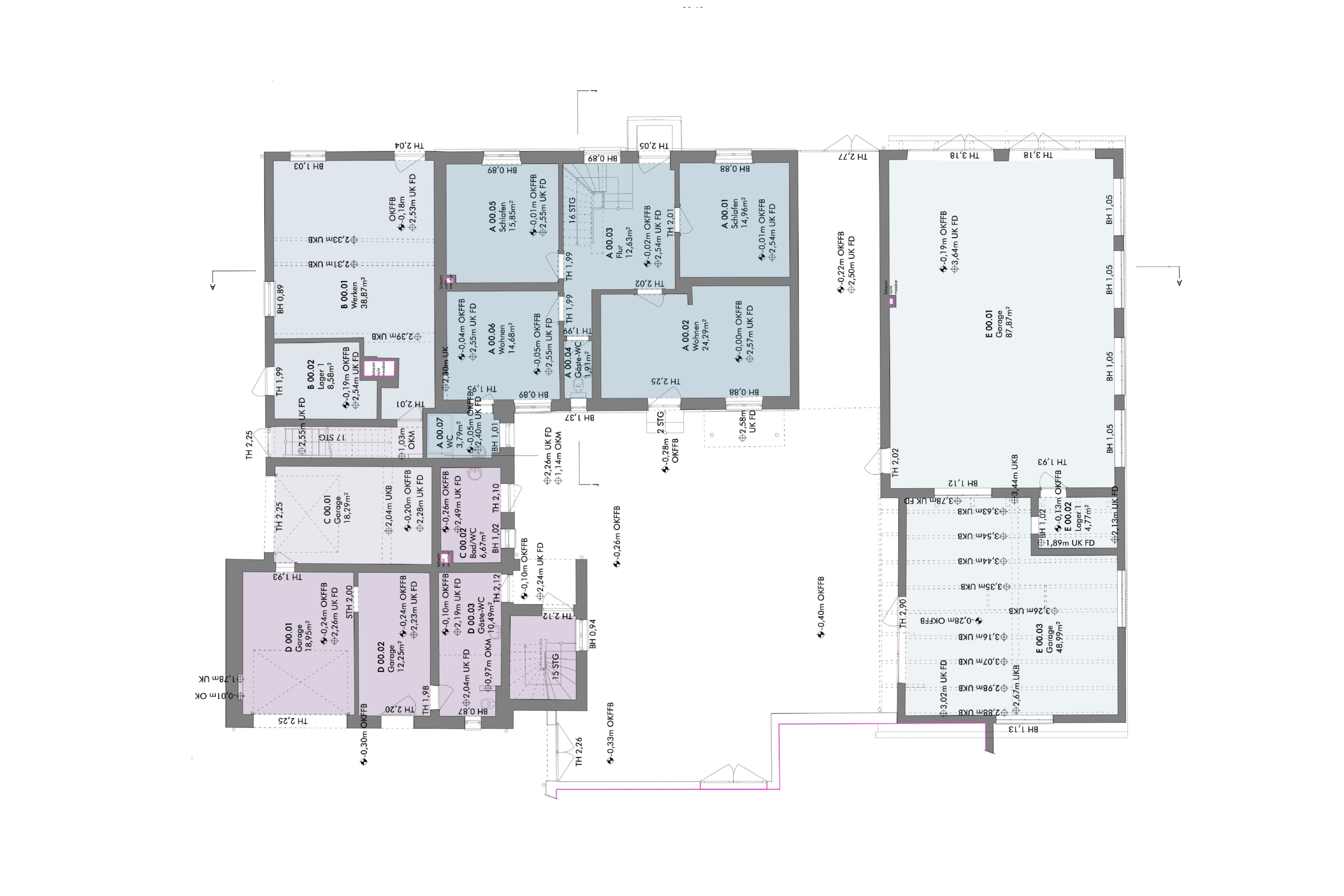
In der Machbarkeitstudie werden von FV2 in drei unterschiedlichen Varianten Möglichkeiten der Umnutzung und die bestehenden Potenziale auf dem Grundstück und im Bestand aufgezeigt. Die Varianten werden gemeinsam mit der Bauherrschaft besprochen und dienen als Entscheidungsgrundlage für die weitere Entwicklung des Hofes.
Highlights
In den Varianten werden vielfältige Herangehensweisen im Umgang mit dem Bestand vorgeschlagen. Von der Neustrukturierung des Bestands durch geringe Eingriffe und dem Herausarbeiten des Elternhauses in der Fassade bis zum teilweisen Abbruch und Neubau in ressourcenschonender Holzbauweise, werden möglichst unterschiedliche Szenarios mit ihren individuellen Vorzügen beleuchtet.
Zukunftsweisendes Wohnen im Grünen
Mit dem dritten Vorschlag wird der bestehende Garagenbau abgebrochen und Raum für einen Neubau in Holzbauweise mit Gartenzone und südlicher Ausrichtung ermöglicht. Der hohe Vorfertigungsgrad, schnelle Bauzeiten und ein angenehmes Raumklima des eingeschossigen Holzbaus ergänzen den Altbestand des Hofensembles und weisen in eine zukunftsfähige Richtung für die nächsten Generationen.
Entdecken Sie unsere Leidenschaft für das Denkmal
Werfen Sie einen Blick auf unsere weiteren Denkmal-Projekte.












